Schenkkade 304
2595 AZ Den HaagOmschrijving
Zeer luxe turn-key appartement van 122 m2 woonoppervlak verdeeld over drie woonlagen gelegen in het Haagse Bezuidenhout en met schitterend uitzicht over de skyline van Den Haag. De woning is grondig verduurzaamd, is gasloos en beschikt over een energiezuinig label A+.
TOP-5 redenen voor het kopen van dit appartement:
1.) Volledig eigentijds gerenoveerd met luxe afwerkniveau.
2.) Energiezuinig label A+.
3.) Beschikt over een riant dakterras met fraai uitzicht op onder meer de skyline van Den Haag.
4.) Beschikt over vier ruime slaapkamers en twee badkamers.
5.) Nabij uitvalsweg naar de Randstad, openbaar vervoer opstappunten (o.m. Centraal Station) en andere stedelijke voorzieningen.
INDELING:
Begane grond: Via de gemeenschappelijk Haagse portiektrap ga je naar de eerste etage.
Eerste etage: Voordeur met hal en trap naar de tweede etage.
Tweede etage: Je arriveert op de overloop die toegang biedt tot vier slaapkamers van respectievelijk 13 m2, 12,5 m2, 10 m2 en 7 m2, alsmede een badkamer voorzien van ligbad, inloopdouche, wastafel en handdoekradiator. Verder bevinden zich aan deze overloop een separate toiletruimte en twee opbergkasten met wasmachine droger aansluiting. De slaapkamer van 10 m2 heeft een eigen (tweede) badkamer met inloopdouche, wastafel en handdoekradiator. Vanuit de slaapkamer van 7 m2 kan je op een achter gelegen balkon van ca. 6 m2. Alle ramen op deze etage zijn voorzien van HR++ glas met draaikiepramen. De vloer wordt volledig verwarmd met vloerverwarming en is luxe afgewerkt met een in alle slaapkamers doorlopende onderhoudsvrije pvc-vloer van hoge kwaliteit. Met de trap ga je naar de derde etage.
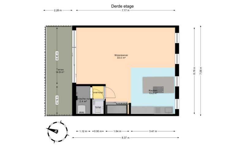
Derde etage: Deze in 2023 nieuw aangelegde woonlaag van 53 m2 beschikt over een riante woonkamer met luxe open keuken voorzien van een kookeiland met Italiaans marmeren blad en inductie kookplaat met geïntegreerde downdraft afzuigkap en geïntegreerd stopcontact. De keuken bevat verder hoge opbergkasten en inbouwapparatuur als combi-oven, stoomoven, vaatwasmachine, koel-vriescombinatie en een vaatwasmachine (alle van de merken Siemens en Samsung). Vanuit de woonkamer is er middels een brede schuifpui toegang tot het riante dakterras van 15 m2 op het noordwesten en met fraai uitzicht over de skyline van Den Haag. Daarnaast beschikt deze woonlaag over een separate toiletruimte en een technische ruimte met opstelplaats voor de full-electric warmtepomp en meterkast. Alle ramen op deze etage zijn voorzien van triple glas (HR+++) met draaikiepramen. De vloer wordt volledig verwarmd met vloerverwarming en is luxe afgewerkt met een onderhoudsvrije pvc-vloer in visgraatmotief met zwarte bies van hoge kwaliteit.
Voor een goede indruk van de maatvoering en de situering van deze ruimtes ten opzichte van elkaar, verwijzen we je graag naar de in deze presentatie getoonde 2D en 3D -plattegronden alsmede de Virtual Reality presentatie.
BIJZONDERHEDEN:
* Gelegen op eigen grond.
* Actieve VvE met een maandelijkse bijdrage van €100,00. De VvE beschikt over een MJOP, reserves, jaarrekening, notulen en een gemeenschappelijke opstalverzekering.
* Elektra: Beschikt over een moderne schakelkast voorzien van 19 groepen en 5 aardlekschakelaars.
* Zonnepanelen: Op het dak bevinden zich 6 zonnepanelen.
* Verwarming: De woning wordt verwarmd met een full electric warmtepomp. Er wordt in dit appartement geen gas verbruikt.
* Isolatie: De muren zijn goed (na)-geïsoleerd (2023). Het nieuwe dak uit 2023 is ook uitstekend geïsoleerd met PIR. De ramen op de tweede etage zijn van het type HR++ en de derde etage is zelfs volledig voorzien van triple glas.
* Oplevering: in overleg en kan snel.
BEZICHTIGINGEN:
Kortom, deze woning is zeker de moeite waard om te bezichtigen. Maakt u hiervoor een afspraak met de makelaar op een van de volgende dagdelen:
* vrijdag 24 oktober 2025 van 13:00 uur tot 17:00 uur
* dinsdag 28 oktober 2025 van 13:00 uur tot 17:00 uur
* woensdag 29 oktober 2025 van 9:00 uur tot 12:00 uur
Maak hiervoor een afspraak vooraf met de makelaar. Voor iedere afspraak wordt 45 minuten ingepland, zodat je de persoonlijke aandacht krijgt die je verdient.












