Melis Stokezijde 123
2543GH Den HaagOmschrijving
Beschut gelegen 3 kamerappartement van 76 m2 op een tweede etage, welke beschikt over twee balkons en een eigen berging in de onderbouw. Het gaat om een goed onderhouden maar gedateerd appartement. Gelegen nabij openbaar vervoer opstapplaats ‘de Dreef’ voor tramlijnen 9 (Hollands Spoor, Centrum en Centraal Station) en 10 (Scheveningen). Er is mogelijkheid voor het parkeren van een auto op het gemeenschappelijke parkeerterrein met slagboom. Ook voor natuurliefhebbers is deze locatie uitstekend gelegen, want natuurpark ‘De uithof’ bevindt zich op slechts 5 minuten lopen.
TOP 5-REDENEN VOOR HET KOPEN VAN DIT APPARTEMENT:
1.) Beschutte ligging, tussen bomen en met hoegenaamd geen geluidsoverlast van verkeer.
2.) Nabij openbaar vervoer tramlijnen 9 en 10 naar Hollands Spoor, Centraal Station, Centrum en Scheveningen.
3.) Op slechts 7 km afstand van de A4 naar overige delen van de Randstad.
4.) Beschikt over een riant balkon van 8 m2 op het westen (middag en avondzon).
5.) Gedateerd appartement, waardoor een lagere vraagprijs en de mogelijkheid om het appartement volledig te renoveren naar eigen smaak, zonder het hoeven wegbreken van waardevolle elementen.
INDELING:
Begane grond: Via de gemeenschappelijke voordeur kom je in de hal met trap en lift. Je gaat naar de tweede etage.
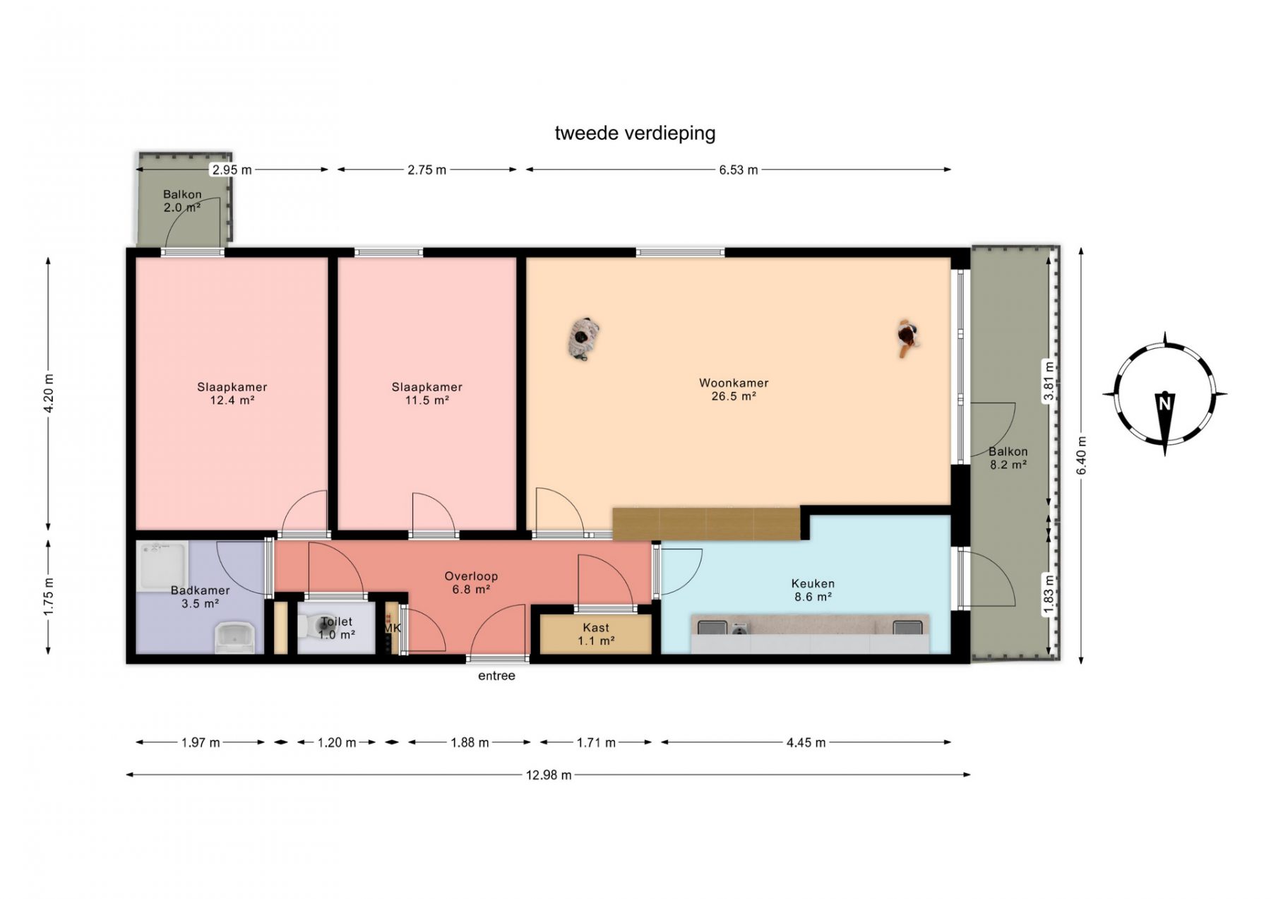
Tweede etage: Gemeenschappelijke hal naar de voordeur. Je gaat naar binnen en komt uit op de centrale overloop, die toegang biedt tot de ruime woonkamer van 26,5 m2, twee ruime slaapkamers van respectievelijk 12,4 m2 en 11,5 m2, de keuken van 8,6 m2, de badkamer van 3,5 m2 ,de toiletruimte en een ruime voorraadkast. Vanuit de woonkamer en keuken kan je op het balkon over de volle breedte van het appartement van 8 m2 op het westen, waardoor je er heerlijk kan genieten van de middag -en avondzon. Daarnaast biedt één van twee slaapkamers toegang tot het tweede balkon van 2 m2. De keuken is voorzien van een aanrecht voor rolstoelgebruikers. Ook de badkamer beschikt over hulpmiddelen voor mensen die moeilijk ter been zijn.
In de onderbouw bevindt zich op het niveau van de begane grond een privé-berging van 6 m2. Ideaal om de fiets veilig te parkeren, met daarnaast ook nog voldoende ruimte voor het opbergen van spullen.
Voor een goede indruk van de maatvoering en de situering van deze ruimtes ten opzichte van elkaar, verwijzen we je graag naar de in deze presentatie getoonde 2D en 3D -plattegronden alsmede de Virtual Reality presentatie.
Bijzonderheden:
* Gelegen op erfpachtgrond voor onbepaalde tijd (Verzameling 1923/19 en 1930/ 26& 27), welke op 31 december 2030 afloopt en dan wordt omgezet naar eeuwig durende erfpacht : Tot die datum bedraagt de jaarlijkse canon ca. € 1,10
* De offerte van de gemeente Den Haag voor omzetting van de huidige erfpacht naar eeuwigdurend is beschikbaar, met mogelijkheid om deze eeuwigdurend af te kopen voor een bedrag van € 31.878,00 of met een jaarlijks te betalen canon van € 669,44
* Actieve VvE: €185,35 per maand. De VvE wordt professioneel begeleid en beschikt over een MJOP, gemeenschappelijke opstalverzekering , jaarrekening en notulen.
* Voorschot stookkosten: € 77,40 per maand.
* Elektra: stoppenkast voorzien van drie groepen.
* Warm water: via gemeenschappelijke hydrofoor in de onderbouw met individuele meter bij de hydrofoor.
* Verwarming: via gemeenschappelijke hydrofoor in de onderbouw met individuele meters op de radiatoren.
* Het appartement stamt uit 1978 en beschikt over betonnen constructievloeren.
* Het appartement is voorzien van dubbel glas in houten kozijnen.
* De eigenaar heeft het appartement niet zelf bewoond, derhalve wordt er een ‘niet zelf bewoningsclausule’ opgenomen in de koopakte. Er is ook geen Vragenlijst beschikbaar.
* Het appartement wordt ‘as-is’ opgeleverd, daarom wordt er geen lijst van zaken opgesteld.
* Oplevering in overleg: kan snel.
Kortom, dit appartement is zeker de moeite waard om te bezichtigen. Maak u hiervoor een afspraak met de makelaar op één van de volgende dagdelen:
* Donderdag 13 november van 09;00 uur tot 12:00 uur.
* Vrijdag 14 november van 13:00 uur tot 17:00 uur.
* Maandag 17 november van 9:00 uur tot 12:00 uur.
Voor iedere bezichtiging wordt een half uur ingepland, zodat je de persoonlijke aandacht krijgt die je verdient.
Sheltered 2-Bedroom Apartment (76 m²) on the Second Floor with Two Balconies and Private Storage Unit.
This well-maintained but dated 3-room apartment of 76 m² is situated on the second floor in a quiet, sheltered location and comes with two balconies and a private storage unit in the basement. It is conveniently located near public transport stop De Dreef, serving tram lines 9 (Hollands Spoor, City Centre, and Central Station) and 10 (Scheveningen). There is a shared parking area with a barrier gate, where residents can park their car. Nature lovers will also appreciate this location — the De Uithof nature park is just a 5-minute walk away.
TOP 5 REASONS TO BUY THIS APARTMENT
1.) Quiet and sheltered location — surrounded by trees with virtually no traffic noise.
2.) Excellent public transport connections — tram lines 9 and 10 to Hollands Spoor, Central Station, the city centre, and Scheveningen.
3.) Great accessibility — only 7 km from the A4 motorway to other parts of the Randstad.
4.) Spacious west-facing balcony (8 m²) — perfect for enjoying the afternoon and evening sun.
5.) Dated condition — reflected in a lower asking price, offering the opportunity to renovate to your own taste without removing valuable features.
LAYOUT
Ground floor:
Through the communal entrance you enter the hall with stairs and elevator leading to the second floor.
Second floor:
From the shared hallway you reach the front door. Inside, a central corridor provides access to:
– a spacious living room (26.5 m²),
– two large bedrooms (12.4 m² and 11.5 m²),
– a kitchen (8.6 m²),
– a bathroom (3.5 m²),
– a separate toilet, and
– a large storage closet.
From both the living room and the kitchen, you can access the west-facing balcony (8 m²) that stretches across the full width of the apartment — a wonderful spot to enjoy the afternoon and evening sun. One of the bedrooms also has access to the second, smaller balcony (2 m²). The kitchen includes a lowered countertop suitable for wheelchair users. The bathroom is also equipped with accessibility aids for people with limited mobility.
Basement:
At ground level in the basement, you will find a private storage unit of 6 m² — ideal for safely storing bicycles and other belongings.
For a clear understanding of the layout and spatial proportions, please refer to the 2D and 3D floor plans and the Virtual Reality presentation included in this listing.
DETAILS
* Located on leasehold land for an indefinite period (Collection 1923/19 and 1930/26 & 27), expiring on 31 December 2030, after which it will convert to perpetual leasehold. Until that date, the annual ground rent is approx. €1.10.
* The Municipality of The Hague has issued a quote for conversion to perpetual leasehold, offering two options:
– buy off perpetually for €31,878, or
– continue with an annual ground rent of €669.44.
* Active homeowners’ association (VvE): €185.35 per month. Professionally managed, with a multi-year maintenance plan (MJOP), collective building insurance, annual accounts, and meeting minutes.
* Advance payment for heating costs: €77.40 per month.
* Electricity: fuse box with three circuits.
* Hot water and heating: supplied via a central system (hydro installation) in the basement, with individual meters.
* Built in 1978 with concrete floors.
* Double glazing in wooden window frames.
* The seller has not personally occupied the property; therefore, a “non-occupancy clause” will be included in the purchase agreement. No questionnaire is available.
* The apartment will be sold as-is, so no list of movable items will be provided.
* Delivery date: by mutual agreement, available on short notice.
VIEWING APPOINTMENTS
This apartment is definitely worth viewing. You can schedule a viewing with the real estate agent during one of the following time slots:
* Thursday, November 13 – 09:00 to 12:00
* Friday, November 14 – 13:00 to 17:00
* Monday, November 17 – 09:00 to 12:00
Each viewing is scheduled for 30 minutes to ensure you receive the personal attention you deserve.







