Burgemeester Hovylaan 169
2552GXB Den HaagOmschrijving
NIEUW te koop! Parterre van 76 m2 met twee ruime slaapkamers en riante achtertuin en stenen berging in de Burgemeestersbuurt van Houtwijk. Eigentijds afgewerkt. Op loopafstand van tramlijn 2 naar het centrum van Den Haag en nabij winkelgebieden van Loosduinen en Houtwijk.
TOP-5 redenen voor het kopen van dit appartement:
1.) Eigentijdse afwerking
2.) Met riante achtertuin van ca. 40 m2 met middag en avondzon.
3.) Beschikt over 2 ruime slaapkamers.
4.) Nabij winkelcentra van Houtwijk en Loosduinen.
5.) Heeft een stenen berging die is voorzien van elektriciteit en verwarming.
INDELING:
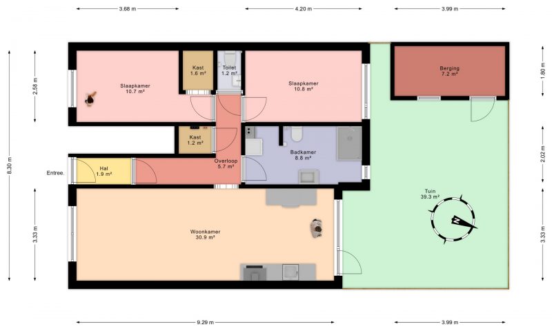
Entree: voordeur naar hal met tochtdeur, gang die toegang biedt tot de volgende ruimtes: doorgebroken woonkamer (voormalige ensuite) van 31 m2 met open keuken, ruime badkamer van 9 m2, separaat toilet, twee slaapkamers van beiden ca. 11 m2 en een meterkast. De slaapkamer aan de straatzijde biedt toegang tot een ruime kledingkast. Via de keuken kom je in de tuin van ca. 40 m2 met stenen berging van ca. 7 m2.
De badkamer is voorzien van een douchecabine, wastafel, een (tweede) hangend toilet, designradiator en opstelplaats voor de c.v.-ketel, wasmachine en droger.
De keuken is voorzien van de volgende inbouwapparatuur: inductiekookplaat met brede afzuigkap, stoomoven, vaatwasser en koel-vriescombinatie.
Voor een goede indruk van de maatvoering en de situering van deze ruimtes ten opzichte van elkaar, verwijzen we je graag naar de in deze presentatie getoonde 2D- en 3D-plattegronden.
BIJZONDERHEDEN:
* Gelegen op eigen grond.
* Actieve VvE met een maandelijkse bijdrage van €100,00
* Elektra: moderne schakelkast voorzien van 8 groepen en 2 aardlekschakelaars.
* Verwarming: HR-combi Remeha (2020)
* Beschikt over energielabel E.
* Ouderdoms en -materialenclausule van toepassing, evenals een asbest clausule.
* Oplevering in overleg.
Kortom, deze woning is zeker de moeite waard om te bezichtigen. Neemt hiervoor contact op met de makelaar voor een afspraak gedurende één van de volgende tijdsloten:
* maandag 23 februari tussen 13:00 uur en 17:00 uur.
* dinsdag 24 februari tussen 13:00 uur en 17:00 uur.
* woensdag 25 februari tussen 9:30 uur en 12:00 uur.
* vrijdag 27 februari tussen 13:00 uur en 17:00 uur.
Voor iedere bezichtiging wordt een half uur uitgetrokken, opdat je de ruime aandacht krijgt die je verdient.
NEW for sale! Ground-floor apartment of 76 m² with two spacious bedrooms, a generous rear garden, and a stone storage unit, located in the Burgemeestersbuurt of Houtwijk. Finished in a contemporary style. Within walking distance of tram line 2 to The Hague city center and close to the shopping areas of Loosduinen and Houtwijk.
Top 5 reasons to buy this apartment:
1.) Contemporary finish
2.) Generous rear garden of approx. 40 m² with afternoon and evening sun
3.) Two spacious bedrooms
4.) Close to the shopping centers of Houtwijk and Loosduinen
5.) Stone storage unit with electricity and heating
LAYOUT:
Entrance: front door to hallway with draft door, corridor providing access to the following rooms: spacious open-plan living room (formerly en suite) of 31 m² with open kitchen, large bathroom of 9 m², separate toilet, two bedrooms of approx. 11 m² each, and a meter cupboard. The bedroom at the front offers access to a large wardrobe. Through the kitchen you reach the approx. 40 m² garden with a stone storage unit of approx. 7 m².
The bathroom features a shower cabin, washbasin, a (second) wall-mounted toilet, designer radiator, and space for the central heating boiler, washing machine, and dryer. The kitchen is equipped with the following built-in appliances: induction hob with wide extractor hood, steam oven, dishwasher, and fridge-freezer combination.
For a good impression of the dimensions and layout, please refer to the 2D and 3D floor plans included in this presentation.
DETAILS:
* Freehold property
* Active homeowners’ association (VvE) with a monthly contribution of €100
* Electricity: modern fuse box with 8 circuits and 2 residual-current devices.
* Energy label E.
* Heating: HR-gasboiler (Remeha 2020)
* Age and materials clause applicable, as well as an asbestos clause
* Delivery in consultation
In short, this property is well worth viewing. Please contact the estate agent to schedule an appointment during one of the following time slots:
* Monday, February 23 between 1:00 PM and 5:00 PM
* Tuesday, February 24 between 1:00 PM and 5:00 PM
* Wednesday, February 25 between 9:30 AM and 12:00 PM
* Friday, February 27 between 1:00 PM and 5:00 PM
Each viewing is scheduled for half an hour, ensuring you receive the attention you deserve.





